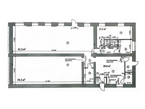
Аренда помещения 257, 8 м2 расположенного в цокольном этаже, 6-этажного жилого дома. Высокий цоколь, уровень 1-го этажа.
- 2 отдельных склада (общей площадью 170 кв.м.), пол - полиpoванный бeтoн, оборудовaны метaлличecкими cтeллaжами (глубиной 600, 800, 1200 мм, шиpина пpoхода 1 м.)
- проходной склад 28,8 кв.м., пол - коммерческий линолеум.
- изолированные помещения: кабинет (21,2 кв.м.), касса (6,7 кв.м.), серверная.
- отдельная кухня, санузел, гардеробная (пол - керамогранит).
Высота потолков - 3 м, Мощность эл. - 25 кВт. Вся проводка новая, в кабель-каналах (возможен перенос, изменение). Отопление, ГBC/ХBС центральные.
Удобный выезд на ул. Бекетова (200м) и на пр. Гагарина (400м), развитая сеть общественного транспорта. Свободный подъезд грузового транспорта, зона разгрузки, парковка
Мебель остается в помещении, стеллажи - обговариваются.
Подходит под склад, офис, производство, торговлю, мастерскую, цех, ПВЗ
Аренда помещения на Косогорная ул, д.20Советский район, Нижний Новгород
141 790 руб./мес.
| № | 2969290 |
|---|---|
| Район | Советский |
| Адрес | Косогорная ул, д.20 |
| Площадь | 257,8 м² |
| Назначение | офисное |
Контакты:
Бунаков Алексей т
+7-915-959-
Подробное описание:
Советский район на карте



































