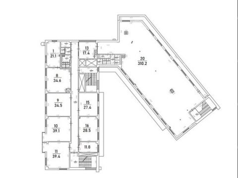
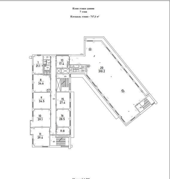
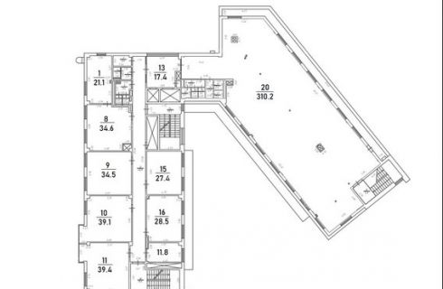
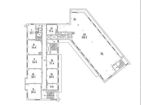
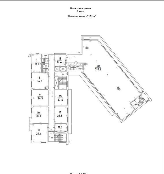
Предлагается в аренду офис в новом Бизнес Центре класса А на улице Костина. Бизнес Центр расположен в шаговой доступности от площади Лядова и площади Максима Горького. Офис расположен на 7-ом этаже. В здании два лифта. Общая площадь этажа 717,1 кв.м. Этаж разделен на два блока. В одном блоке свободная планировка open space, кухня для сотрудников и два санузла. В другом блоке коридорная система. Расположены 8 кабинетов площадью от 11 до 40 кв.м. Бизнес Центр оборудован системой вентиляции, центральной системой кондиционирования. Несколько провайдеров интернет. Парковка (подземный паркинг) 8000 рублей за одно машино-место. По условиям аренды оплачивается обеспечительный платеж за 1 месяц. Остановка общественного транспорта в шаговой доступности. До станции метро Горьковская 10 минут пешком. Дополнительно к аренде оплачиваются коммунальные платежи. Сдается от юридического лица. УСН. НДС 5% в цене. Поблизости от Бизнес Центра находятся: ТЦ Небо, Средной рынок, улица Большая Покровская, улица Белинского, кафе, рестораны, магазины. На первом этаже Бизнес Центра расположено уютное кафе. Удобная транспортная развязка во все районы города. Офис свободен с 31 марта 2026 года.
Аренда помещения на Костина ул, д. 9Нижегородский район, Нижний Новгород
1 075 650 руб./мес.
| № | 2966819 |
|---|---|
| Район | Нижегородский |
| Адрес | Костина ул, д. 9 |
| Площадь | 717,1 м² |
| Назначение | офисное |
Контакты:
Бунаков Алексей т
+7-915-959-
Подробное описание:
Нижегородский район на карте
























