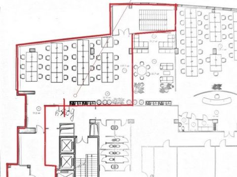
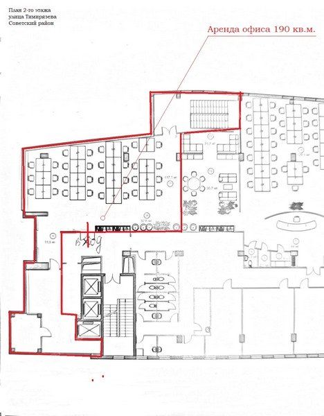
Аренда офиса в современном Бизнес Центре. Нижний Новгород. Советский район. Улица Тимирязева. Офис общей площадью 190 кв.м. Расположен на 2-ом этаже. Коридорная система на этаже. Офис состоит из большого зала, комнаты отдыха и небольшого кабинета. Круглосуточная охрана. Сдается от юр.лица без НДС. Остановка общественного транспорта в шаговой доступности. Офисный центр оснащен современнейшими средствами телекоммуникаций. Оптоволоконные линии связи позволяют использовать различные услуги. Среди них - высокоскоростой доступ к сети Интернет. Приточно-вытяжная система вентиляции с рециркуляцией, обеспечивающая воздухообмен в соответствии с нормами СНиП. В здании 3 лифта, из них 2 пассажирских и 1 грузовой. Система безопасности: система контроля доступа по индивидуальным магнитным картам, видеонаблюдение на каждом этаже. Офис свободен с 01 июля 2025 года. Дополнительно к аренде оплачивается электрическая энергия, уборка (внутри офиса), интернет. Можно арендовать место в подземной парковке.
Аренда помещения на Тимирязева ул, д. 15/2Советский район, Нижний Новгород
228 000 руб./мес.
| № | 2953552 |
|---|---|
| Район | Советский |
| Адрес | Тимирязева ул, д. 15/2 |
| Площадь | 190 м² |
| Назначение | офисное |
Контакты:
Бунаков Алексей т
+7-915-959-
Подробное описание:
Советский район на карте





















