Предлагаем в аренду офисные помещения в Бизнес – центре (от собственника)
Описание помещений на 3-ом этаже:
Общая площадь офиса: 37,5 кв. м
(1 офис площадью 37,5 кв. м)
Высота потолков: 2,65 м
Описание помещений на 7-ом этаже:
Общая площадь офисов на 7 этаже: 58,1 кв. м
(2 офиса с площадями- 40 кв. м, 18,1 кв. м)
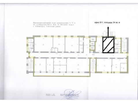
Описание помещения на 8-ом этаже:
Общая площадь офисов на 8 этаже: 34 кв. м
(1 офис с площадью – 34 кв. м)
Высота потолков: 2,65 м
Описание помещения на 9-ом этаже:
Общая площадь офисов на 9 этаже: 410,8 кв. м
Высота потолков: 2,65 м
Общая площадь офисных помещений в аренду составляет: 540,4 кв. м
Общие характеристики помещений:
Вентиляция: принудительная приточно-вытяжная вентиляция
Кондиционирование: мультизональная система кондиционирования
Отопление: собственная газовая автоматизированная котельная
Лифты: 2 пассажирских и 1 грузовой
Парковки: открытая, крытая охраняемая, гостевая.
Стоимость парковочного места на крытой парковке 6 000,00 рублей в месяц, НДС не облагается
Охрана: доступ круглосуточный. Наличие охраны, системы контроля доступа и видеонаблюдения. Охранные услуги включены в стоимость аренды
Телефон/Интернет: Ростелеком, Вымпелком, Оранж, Дом.ру, МТС
Услуги телефонии и интернета осуществляются по отдельно заключенному договору с провайдером (по выбору Арендатора)
Услуги по уборке арендуемых помещений оказываются по отдельно заключенному договору с клининговой компанией
Арендная ставка: 825 руб./кв. м в месяц, НДС не облагается.
Возможен торг.
В арендную ставку включены все коммунальные платежи, уборка мест общего пользования, все расходы по содержанию, эксплуатации и обслуживанию Помещения и Здания в целом, кроме интернета, телефонии и уборки арендуемых помещений.
По согласованию возможна частичная перепланировка Помещения, арендные каникулы при осуществлении ремонта Арендатором, предусмотрена передача в аренду отдельных офисов.
Аренда помещения на ул. Ошарская, д. 77аСоветский район, Нижний Новгород
445 830 руб./мес.
| № | 2948187 |
|---|---|
| Район | Советский |
| Адрес | ул. Ошарская, д. 77а |
| Площадь | 540,4 м² |
| Год постройки | 2008 |
| Этаж / этажность | 9 / 9 |
| Высота потолков | 2,65 м |
| Отдельный вход | нет |
| Объект | помещение в бизнес-центре |
| Назначение | офисное |
Контакты:
Александр Павлович
+7-920-041-
+7-910-109-
Подробное описание:
Ремонт
есть
Телефон
есть
Интернет
есть
Мебель
есть
Дом д. 77а на ул. Ошарская
Аренда помещения на ул. Ошарская, д. 77а











