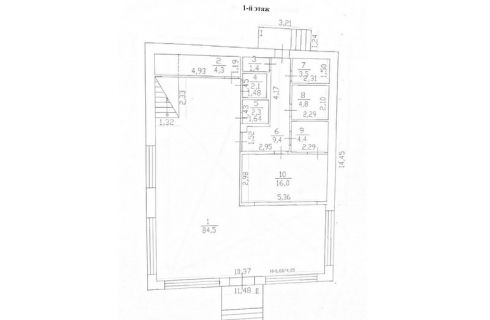
Предлагается в аренду торговое помещение расположенное близ оживленного перекрестка по ул. Ванеева. Красная линия, отдельный вход, Хороший пешеходный трафик. Возможность размещения рекламного материала.Ранее помещение использовалось под ресторан/кафе: 2 этажа,2 зала для гостей,кухня, офисное помещение, дизайнерский ремонт, на красной линии Высота потолков 6 метрв. Хорошая транспортная развязка.В арендную ставку вошло отопление, остальные платежи оплачиваются дополнительно. Оборудованна система пожарно-охранной сигнализации. Мощность по электричеству 40 кВт. Без НДС
Аренда помещения на Ванеева ул, д.91Советский район, Нижний Новгород
310 002 руб./мес.
| № | 2962130 |
|---|---|
| Район | Советский |
| Адрес | Ванеева ул, д.91 |
| Площадь | 183 м² |
| Назначение | торговое |
Контакты:
Сутырин Михаил т
+7-906-365-
Подробное описание:
Советский район на карте













